产品中心/Product center
联系我们/contact us
TELEPHONE
13312532989
- 联系:占先生
- 电话:13312532989
- 手机:13312532989
- 传真:
- 邮箱:1170918501@qq.com
- 网址:kunming.ynjhbz.com
- 厂址:云南省昆明市官渡区大板桥国际包装印刷产业基地A栋
昆明口杯盖注塑磨具设计
来源:http://kunming.ynjhbz.com/news1087010.html发布时间:2017-02-07 00:00:00
云南锦华包装有限公司为您免费提供云南口杯盖,云南铝盖,热收缩标签等相关信息发布和资讯展示,敬请关注!

制品的工艺分析:
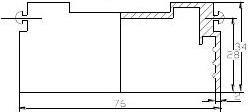
制品(某型昆明口杯盖)分析
见其零件图
塑料名称:聚乙烯(PE)
色调 淡绿色 不透明
生产纲领 大批大量
制品的工艺性及结构分析
结构分析:
该制品为一昆明口杯盖,表面有一阶梯,
小阶梯的外圆面有突起,这就增大了成型的难度,两
外圆面分别在两个型腔成型,必须保证同轴度, 所
以在模具设计和制造上要有精密的定位措施和良
好的加工工艺,以保证传动精度。
成型工艺分析:
精度等级 采用一般精度6级
脱模斜度 因本设计中采用的是瓣合模,
所以不需要考虑脱模,也就是说脱模斜度为零度
材料的性能分析:
聚乙烯(PE)是由乙烯聚合而成的,聚乙烯的原料来
源充足,而且聚乙烯具有优良的电绝缘性能,耐化学腐
蚀性能,耐低温性能和良好的加工流动性。
云南口杯盖哪家好?云南铝盖报价是多少?热收缩标签质量怎么样?云南锦华包装有限公司专业承接云南口杯盖,云南铝盖,热收缩标签,,电话:13312532989
上一条:昆明矿泉水标签订购哪家好?
下一条:如何评价智能昆明口杯盖的设计呢
相关标签:云南口杯盖,
相关新闻RELATED NEWS
- 昆明口杯盖是怎么解决密封性和防漏问题的?2026-03-03
- 昆明口杯盖对材质的要求是什么2024-09-30
- 昆明口杯盖为什么形状多种多样2024-03-07
- 昆明口杯盖会变形的原因是什么2023-12-21
相关产品RELATED PRODUCT





